Side biases half ball valve
1.6MPa、2.5MPa、4.0MPa、6.4MPa


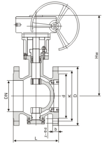
侧装偏心半球阀 Side biases half ball valve





| 公称压力 PN | 公称通径 DN | 尺寸(mm) | ||||||||||
| L | D | K | d | Y | b | z-Φdo | Ws | Hs | Hw | Hd | ||
| 1.6MPa | 50 | 124 | 165 | 125 | 100 | - | 16 | 4-Φ18 | 230 | 164 | 260 | 310 |
| 65 | 145 | 185 | 145 | 120 | - | 18 | 4-Φ18 | 250 | 180 | 275 | 330 | |
| 80 | 165 | 200 | 160 | 135 | - | 20 | 8-Φ18 | 300 | 200 | 300 | 360 | |
| 100 | 194 | 220 | 180 | 155 | - | 20 | 8-Φ18 | 320 | 235 | 335 | 390 | |
| 125 | 210 | 250 | 210 | 185 | - | 22 | 8-Φ18 | 400 | 260 | 355 | 405 | |
| 150 | 229 | 285 | 240 | 210 | - | 24 | 8-Φ23 | 500 | 280 | 375 | 440 | |
| 200 | 243 | 340 | 295 | 265 | - | 26 | 12-Φ23 | 800 | 320 | 410 | 470 | |
| 250 | 297 | 405 | 355 | 320 | - | 30 | 12-Φ23 | 1000 | 355 | 485 | 550 | |
| 300 | 338 | 460 | 410 | 375 | - | 30 | 12-Φ25 | 1200 | 400 | 530 | 595 | |
| 350 | 400 | 520 | 470 | 435 | - | 34 | 16-Φ25 | - | - | 580 | 650 | |
| 400 | 400 | 580 | 525 | 485 | - | 36 | 16-Φ30 | - | - | 650 | 730 | |
| 450 | 502 | 640 | 585 | 545 | - | 40 | 20-Φ30 | - | - | 710 | 790 | |
| 500 | 533 | 715 | 650 | 608 | - | 44 | 20-Φ34 | - | - | 760 | 840 | |
| 600 | 686 | 840 | 770 | 718 | - | 48 | 20-Φ41 | - | - | 870 | 960 | |
| 700 | 762 | 910 | 840 | 788 | - | 50 | 24-Φ41 | - | - | 910 | 1080 | |
| 800 | 864 | 1025 | 950 | 898 | - | 52 | 24-Φ41 | - | - | 935 | 1125 | |
| 900 | 914 | 1125 | 1050 | 998 | - | 54 | 28-Φ41 | - | - | 995 | 1255 | |
| 1000 | 1255 | 1170 | 1110 | - | 56 | 28-Φ48 | - | - | 1080 | 1385 | ||
| 1200 | 1485 | 1390 | 1325 | - | 58 | 32-Φ54 | - | - | 1175 | 1490 | ||
| 1400 | 1685 | 1590 | 1525 | - | 60 | 36-Φ54 | - | - | 1280 | 1565 | ||
| 2.5Mpa | 50 | 124 | 165 | 125 | 1000 | - | 20 | 4-Φ18 | 230 | 164 | 260 | 310 |
| 65 | 145 | 185 | 145 | 120 | - | 22 | 8-Φ18 | 250 | 180 | 275 | 330 | |
| 80 | 165 | 200 | 160 | 135 | - | 22 | 8-Φ18 | 300 | 200 | 300 | 360 | |
| 100 | 194 | 230 | 190 | 160 | - | 24 | 8-Φ23 | 320 | 235 | 335 | 390 | |
| 125 | 210 | 270 | 220 | 188 | - | 28 | 8-Φ25 | 400 | 260 | 355 | 405 | |
| 150 | 229 | 300 | 250 | 218 | - | 30 | 8-Φ25 | 500 | 280 | 375 | 440 | |
| 200 | 243 | 360 | 310 | 278 | - | 34 | 12-Φ25 | 800 | 320 | 410 | 470 | |
| 250 | 297 | 425 | 370 | 332 | - | 36 | 12-Φ30 | 1000 | 355 | 485 | 550 | |
| 300 | 338 | 485 | 430 | 390 | - | 40 | 16-Φ30 | 1200 | 400 | 530 | 595 | |
| 350 | 400 | 555 | 490 | 448 | - | 44 | 16-Φ34 | - | - | 580 | 650 | |
| 400 | 400 | 620 | 550 | 505 | - | 48 | 16-Φ34 | - | - | 650 | 730 | |
| 450 | 502 | 670 | 600 | 555 | - | 50 | 20-Φ34 | - | - | 710 | 790 | |
| 500 | 533 | 730 | 660 | 610 | - | 52 | 20-Φ41 | - | - | 760 | 840 | |
| 600 | 686 | 845 | 770 | 718 | - | 56 | 20-Φ41 | - | - | 870 | 960 | |
| 700 | 762 | 960 | 875 | 815 | - | 60 | 24-Φ48 | - | - | 990 | 1080 | |
| 800 | 864 | 1085 | 990 | 930 | - | 64 | 24-Φ48 | - | - | 935 | 1125 | |
| 900 | 914 | 1185 | 1090 | 1025 | - | 66 | 28-Φ54 | - | - | 995 | 1255 | |
| 1000 | - | 1320 | 1210 | 1140 | - | 68 | 28-Φ58 | - | - | 1080 | 1385 | |
| 1200 | - | 1520 | 1420 | 1350 | - | 72 | 32-Φ58 | - | - | 1175 | 1490 | |
| 1400 | - | 1755 | 1640 | 1560 | - | 78 | 36-Φ65 | - | - | 1280 | 1565 | |
| 4.0MPa | 50 | 124 | 165 | 125 | 100 | 88 | 20 | 4-Φ18 | 250 | 180 | 275 | 325 |
| 65 | 145 | 185 | 145 | 120 | 110 | 22 | 8-Φ18 | 300 | 200 | 290 | 345 | |
| 80 | 165 | 200 | 160 | 135 | 121 | 22 | 8-Φ18 | 320 | 220 | 315 | 375 | |
| 100 | 194 | 235 | 190 | 160 | 150 | 24 | 8-Φ23 | 400 | 260 | 350 | 405 | |
| 125 | 210 | 270 | 220 | 188 | 176 | 28 | 8-Φ25 | 500 | 290 | 370 | 420 | |
| 150 | 229 | 300 | 250 | 218 | 204 | 30 | 8-Φ25 | 800 | 310 | 390 | 455 | |
| 200 | 245 | 375 | 320 | 282 | 260 | 38 | 12-Φ30 | 1000 | 350 | 435 | 495 | |
| 250 | 297 | 450 | 385 | 345 | 313 | 42 | 12-Φ34 | 1200 | 390 | 510 | 575 | |
| 300 | 338 | 515 | 450 | 408 | 364 | 46 | 16-Φ34 | - | - | 555 | 620 | |
| 350 | 400 | 580 | 510 | 165 | 422 | 52 | 16-Φ34 | - | - | 605 | 675 | |
| 400 | 400 | 660 | 585 | 535 | 474 | 58 | 16-Φ41 | - | - | 675 | 755 | |
| 450 | 502 | 685 | 610 | 560 | 524 | 60 | 20-Φ41 | - | - | 735 | 815 | |
| 500 | 533 | 755 | 670 | 612 | 576 | 62 | 20-Φ48 | - | - | 785 | 870 | |
| 6.4Mpa | 50 | 124 | 180 | 135 | 105 | 88 | 26 | 4-Φ23 | 400 | 180 | 275 | 325 |
| 65 | 145 | 205 | 160 | 130 | 110 | 28 | 8-Φ23 | 500 | 200 | 290 | 345 | |
| 80 | 165 | 215 | 170 | 140 | 121 | 30 | 8-Φ23 | 650 | 220 | 315 | 375 | |
| 100 | 194 | 250 | 200 | 168 | 150 | 32 | 8-Φ25 | 800 | 260 | 350 | 405 | |
| 125 | 210 | 295 | 240 | 202 | 176 | 36 | 8-Φ30 | 1000 | 290 | 370 | 420 | |
| 150 | 229 | 345 | 280 | 240 | 204 | 38 | 8-Φ34 | 1200 | 310 | 390 | 455 | |
| 200 | 245 | 405 | 345 | 300 | 260 | 44 | 12-Φ34 | 1400 | 350 | 435 | 495 | |
| 250 | 297 | 470 | 400 | 352 | 313 | 48 | 12-Φ41 | - | - | 510 | 575 | |
| 300 | 338 | 530 | 460 | 412 | 364 | 54 | 16-Φ41 | - | - | 555 | 620 | |
| 350 | 400 | 600 | 525 | 475 | 422 | 60 | 16-Φ41 | - | - | 605 | 675 | |
| 400 | 400 | 670 | 585 | 525 | 474 | 66 | 16-Φ48 | - | - | 675 | 760 | |